hero-image-0

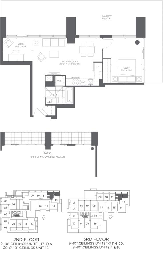
1M + D Plan

The Ravine
Sold
Sold
1
1
1
From 594
unit-banner-imageunit-banner-imageunit-banner-image
1M + D Plan details
1M + D Plan is now sold.
Check out available nearby plans below.