FEATURED
F6
Motto
Bloorcourt Village, Toronto
F4
F1
F2
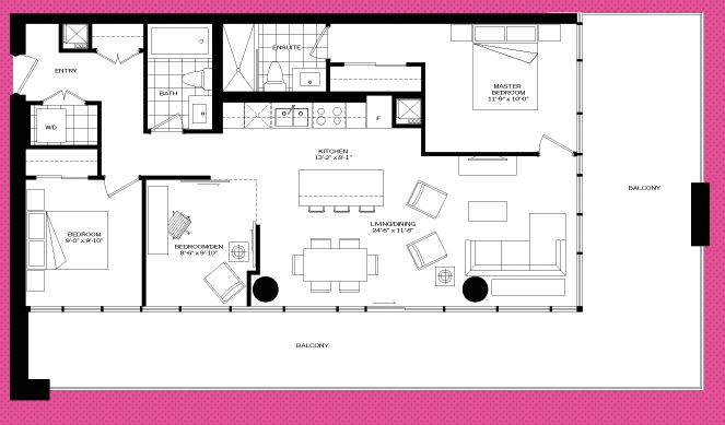
3A
Queen Church
Garden District, Toronto
F3
Ronan
Glenhill Condominiums
Glen Park, Toronto
T-02
Line 5 – The South Tower
North Toronto, Toronto