hero-image-0
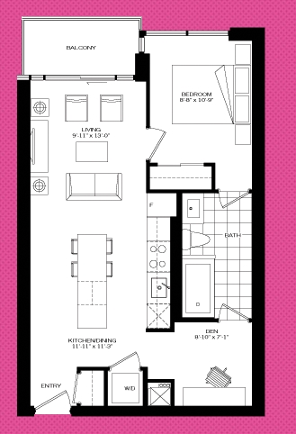
The Mercer
Sold
Sold
1
1
From 618
unit-banner-imageunit-banner-imageunit-banner-image
MP14 Plan details
MP14 Plan is now sold.
Check out available nearby plans below.