FEATURED
S2
Queen Church
Garden District, Toronto
S1
0C
Maison Wellesley
Church and Wellesley, Toronto
S-B
Junction Sq. Condos
The Junction, Toronto
T-03
Line 5 - The North Tower
North Toronto, Toronto
0B
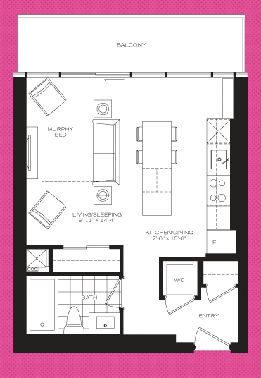
T-10
S-D