hero-image-0
The Mercer
Sold
Sold
2
From 734
unit-banner-imageunit-banner-imageunit-banner-image
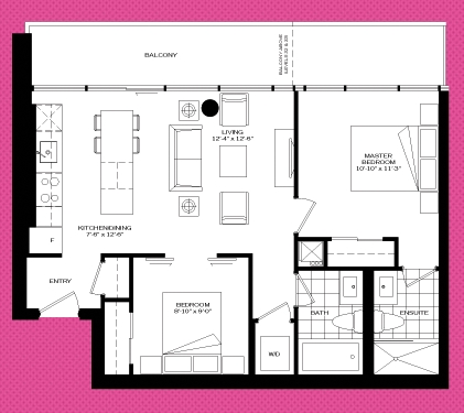
M09 Plan details
M09 Plan is now sold.
Check out available nearby plans below.