hero-image-0
The Madison at Yonge and Eglin...
Sold
Sold
2
From 708
unit-banner-imageunit-banner-imageunit-banner-image
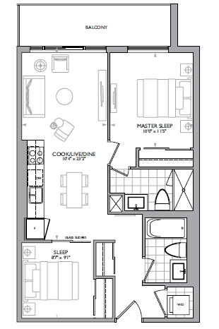
P2K Plan details
P2K Plan is now sold.
Check out available nearby plans below.