FEATURED
B18
Motto
Bloorcourt Village, Toronto
B17
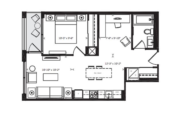
B20A
B15
B21
B23a
A4
C3a
Phase two towers nearly topped off at The Kip District in Etobicoke
The area is in an urban growth centre with several infrastructure improvement projects already completed.