hero-image-0
The Code Condos
Sold
Sold
2
2
1
1
From 1,360
unit-banner-imageunit-banner-imageunit-banner-image
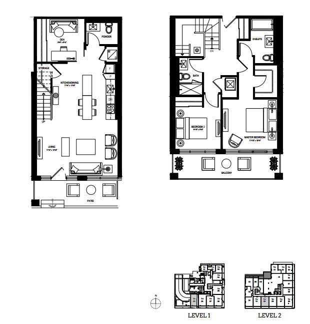
TH1360 Plan details
TH1360 Plan is now sold.
Check out available nearby plans below.