hero-image-0
The Carlaw
Sold
Sold
1
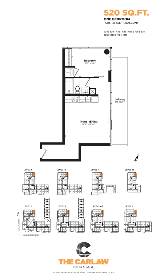
From 520
unit-banner-imageunit-banner-imageunit-banner-image
520 Plan details
520 Plan is now sold.
Check out available nearby plans below.