hero-image-0
The Carlaw
Sold
Sold
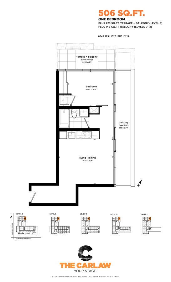
1
1
From 506
unit-banner-imageunit-banner-imageunit-banner-image
506 Plan details
506 Plan is now sold.
Check out available nearby plans below.