FEATURED
2D
Queen Church
Garden District, Toronto
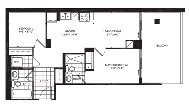
D1
Motto
Bloorcourt Village, Toronto
2B
2G
2C
E7
E9
2K
Free this weekend? Looking for a home? Check out these events!
Brunch plans can wait. You need to scope out these one or more of these first...