FEATURED
B17
Motto
Bloorcourt Village, Toronto
B15
B21
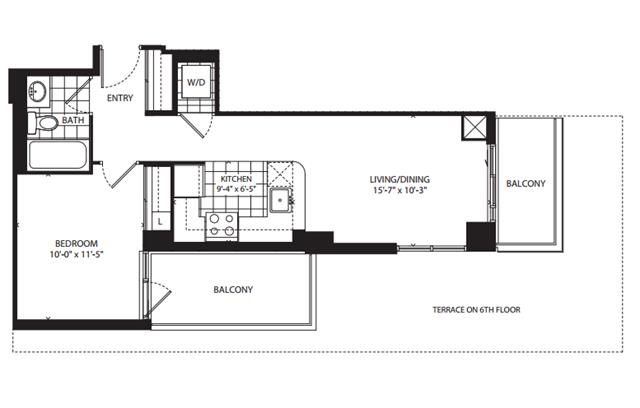
B20A
B18
C3a
B23a
A4
Free this weekend? Looking for a home? Check out these events!
Brunch plans can wait. You need to scope out these one or more of these first...