hero-image-0

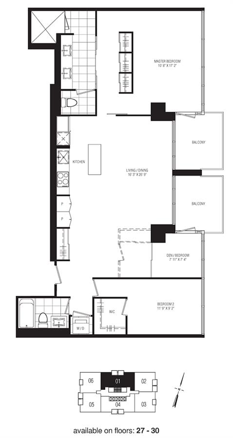
3-A Plan

Studio on Richmond
Sold
Sold
2
2
1
From 1,294
unit-banner-imageunit-banner-imageunit-banner-image
3-A Plan details
3-A Plan is now sold.
Check out available nearby plans below.