hero-image-0

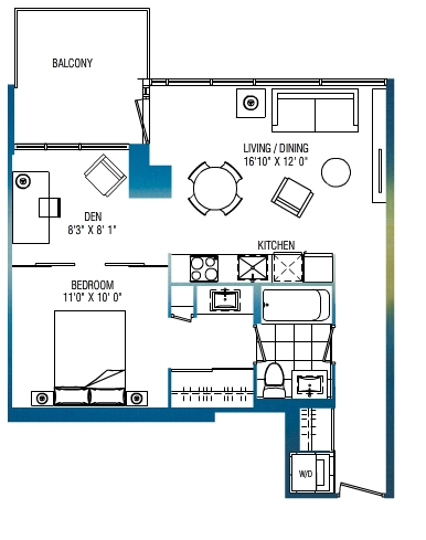
1D-B Plan

Studio on Richmond
Sold
Sold
1
1
From 658
unit-banner-imageunit-banner-imageunit-banner-image
1D-B Plan details
1D-B Plan is now sold.
Check out available nearby plans below.