hero-image-0

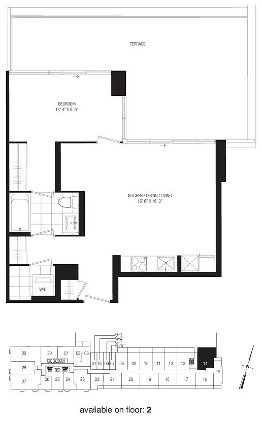
1-H Plan

Studio on Richmond
Sold
Sold
1
From 641
unit-banner-imageunit-banner-imageunit-banner-image
1-H Plan details
1-H Plan is now sold.
Check out available nearby plans below.