FEATURED
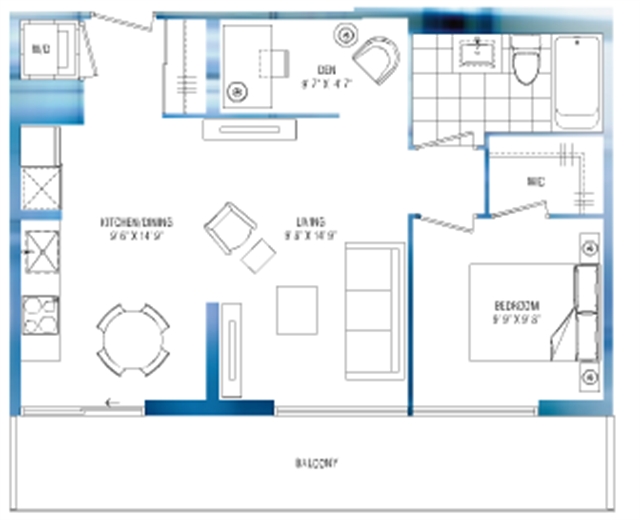
B21
Motto
Bloorcourt Village, Toronto
1F+D
Queen Church
Garden District, Toronto
B18
B15
1E+D
B20A
B17
1G+D
7 new move-in ready condos in downtown Toronto
Move-in ready suites eliminate the long wait time and the risk of having two mortgages.