hero-image-0

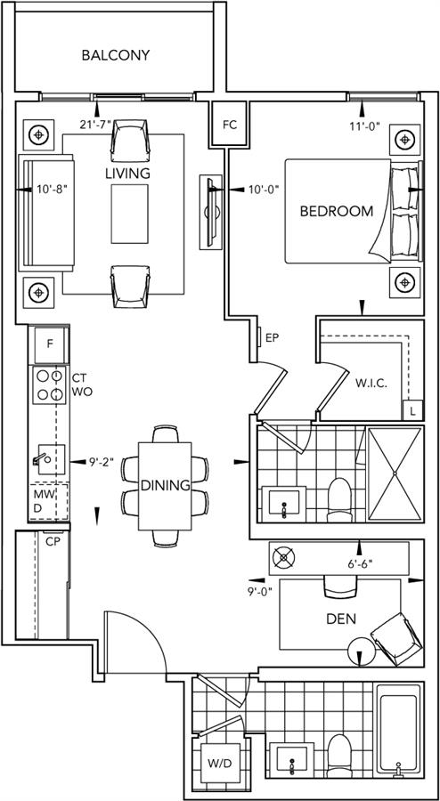
1K+D Plan

SQ2 at Alexandra Park
Sold
Sold
1
2
1
From 723
unit-banner-imageunit-banner-imageunit-banner-image
1K+D Plan details
1K+D Plan is now sold.
Check out available nearby plans below.