hero-image-0

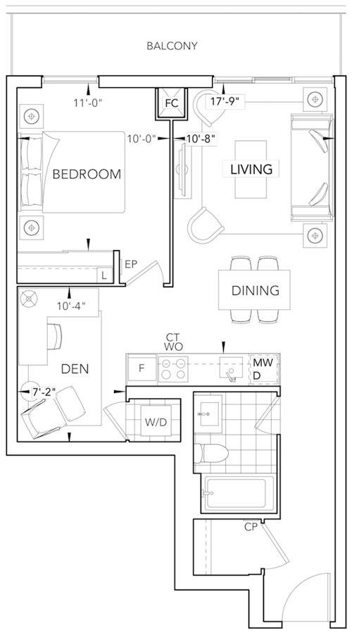
1G+D Plan

SQ2 at Alexandra Park
Sold
Sold
1
1
1
From 651
unit-banner-imageunit-banner-imageunit-banner-image
1G+D Plan details
1G+D Plan is now sold.
Check out available nearby plans below.