hero-image-0

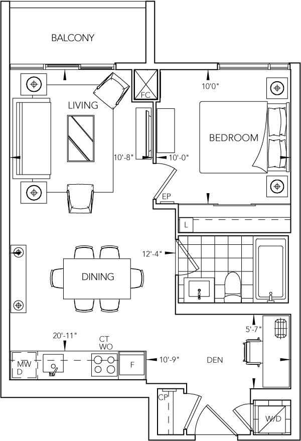
1E+D Plan

SQ2 at Alexandra Park
Sold
Sold
1
1
1
From 574
unit-banner-imageunit-banner-imageunit-banner-image
1E+D Plan details
1E+D Plan is now sold.
Check out available nearby plans below.