FEATURED
B21
Motto
Bloorcourt Village, Toronto
B18
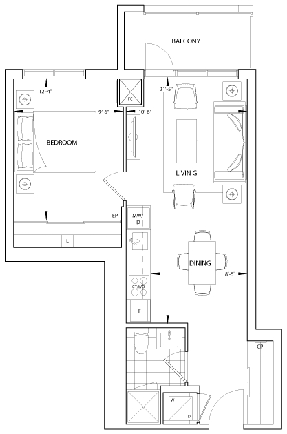
1G+D
Queen Church
Garden District, Toronto
B20A
B15
B17
1F+D
1E+D
Toronto’s hottest new developments of 2013
It was a banner year for Burlington and Toronto's west end, but 2014 might be all about the east end.