hero-image-0

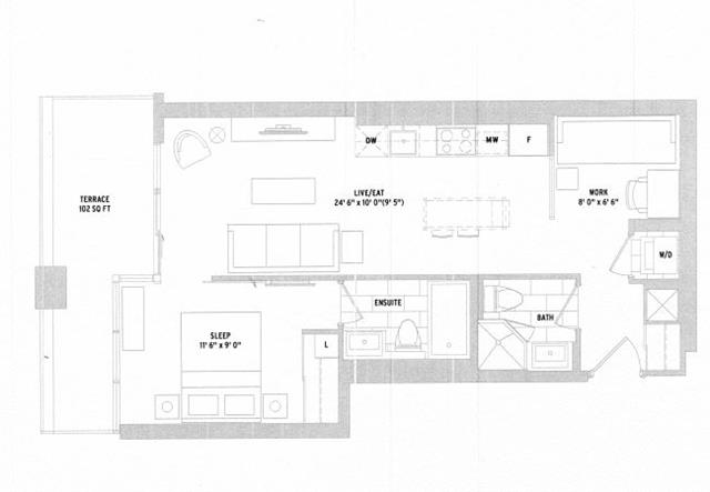
Hush Plan

By

Lindvest

   |   

Sonic

Sonic
Sold
Sold
1
2
1
From 641
unit-banner-imageunit-banner-imageunit-banner-image
Hush Plan details
Hush Plan is now sold.
Check out available nearby plans below.