FEATURED
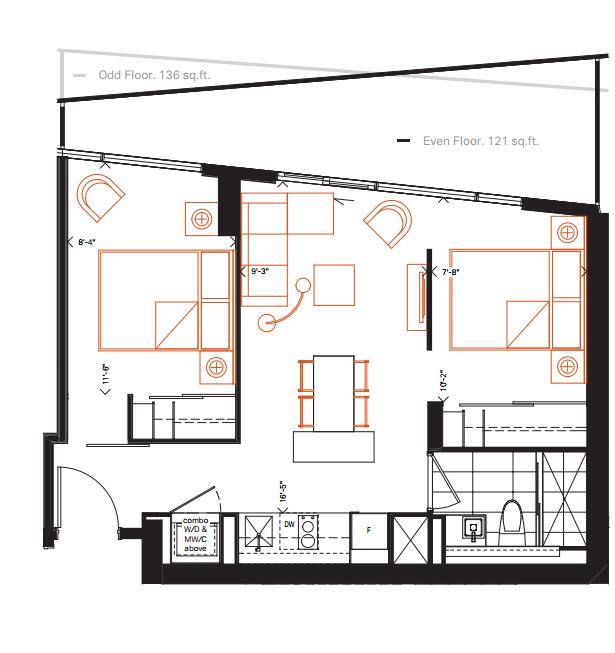
2C
Queen Church
Garden District, Toronto
2B
E6A
Motto
Bloorcourt Village, Toronto
2G
2D
E8
2K
E9
Toronto’s hottest new developments of 2013
It was a banner year for Burlington and Toronto's west end, but 2014 might be all about the east end.
Smart House goes big on amenity space
See all the perks that come with calling the clever condo home.