hero-image-0
Sixty Colborne Condos
Sold
Sold
2
2
1
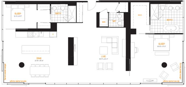
From 1,996
unit-banner-imageunit-banner-imageunit-banner-image
1996 Plan details
1996 Plan is now sold.
Check out available nearby plans below.