hero-image-0

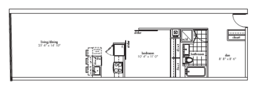
Unit 214 Plan

Seventy5 Portland
Sold
Sold
1
1
From 840
unit-banner-imageunit-banner-imageunit-banner-image
Unit 214 Plan details
Unit 214 Plan is now sold.
Check out available nearby plans below.