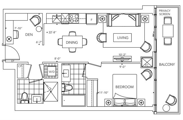
1L+D
6080 Yonge
Newtonbrook West, Toronto
1W+D
1Z+D
1CC+D
1BB+D
The Indigo
Gallery Towers
Unionville, Markham
1EE+D2
1U+D
The top 10 Toronto developments on BuzzBuzzHome in January 2017
As new detached home prices in the Greater Toronto Area continually push higher amid extremely low supply levels, townhouses are become an increasingly appealing option for the average buyer.