hero-image-0
Riverside Towns
Sold
Sold
2
From 1,200
unit-banner-imageunit-banner-imageunit-banner-image
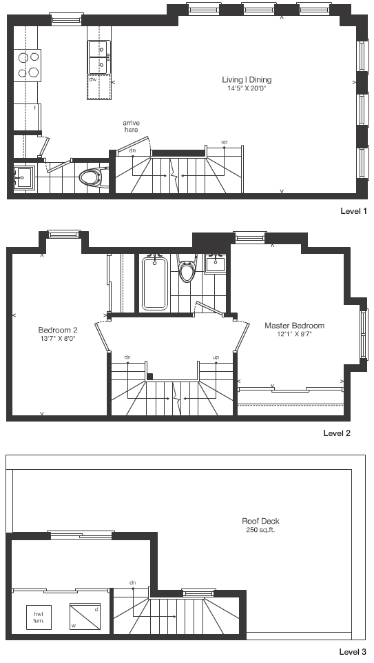
Unit 24 Plan details
Unit 24 Plan is now sold.
Check out available nearby plans below.