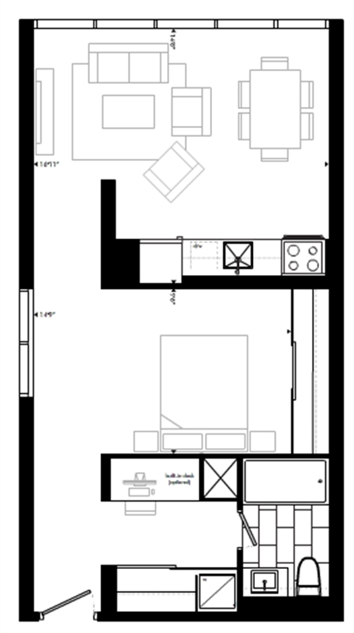
FEATURED
S1
Queen Church
Garden District, Toronto
S2
0B
Maison Wellesley
Church and Wellesley, Toronto
S-C
Junction Sq. Condos
The Junction, Toronto
T-03
Line 5 - The North Tower
North Toronto, Toronto
S-B
T-10
0C