hero-image-0

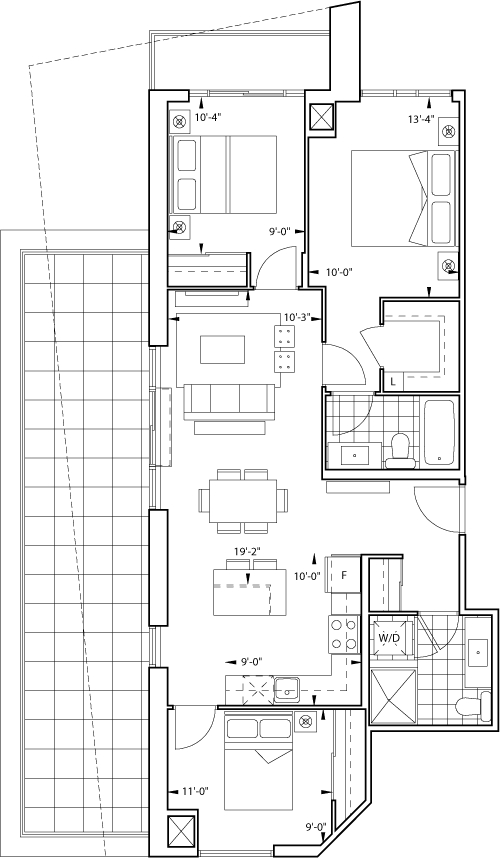
3D+T Plan

By

Tridel

   |   

Rêve Condos

Rêve Condos
Sold
Sold
3
From 1,030
$675
unit-banner-imageunit-banner-imageunit-banner-image
3D+T Plan details
3D+T Plan is now sold.
Check out available nearby plans below.