hero-image-0

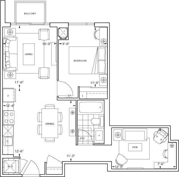
1K+D Plan

By

Tridel

   |   

Rêve Condos

Rêve Condos
Sold
Sold
1
1
From 650
unit-banner-imageunit-banner-imageunit-banner-image
1K+D Plan details
1K+D Plan is now sold.
Check out available nearby plans below.