hero-image-0

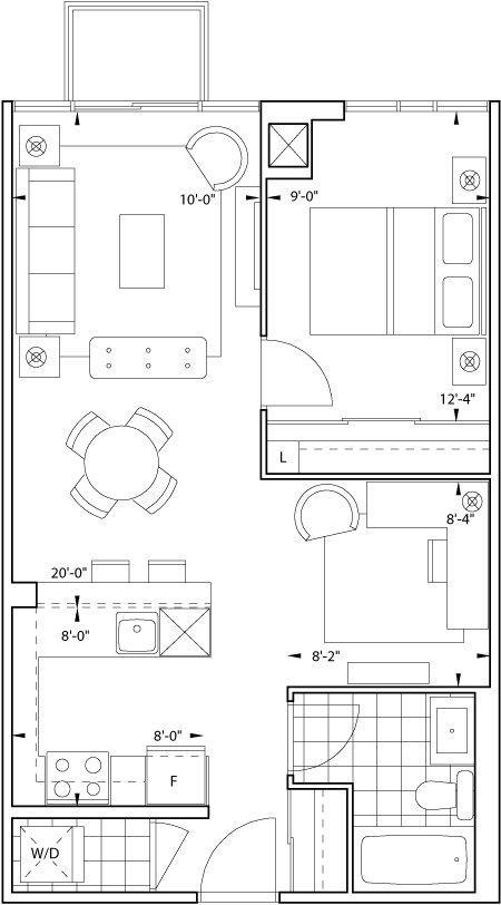
1J+D Plan

By

Tridel

   |   

Rêve Condos

Rêve Condos
Sold
Sold
1
1
From 645
$536
unit-banner-imageunit-banner-imageunit-banner-image
1J+D Plan details
1J+D Plan is now sold.
Check out available nearby plans below.