The O’Connor
Amsterdam Urban Towns
Topham Park, Toronto
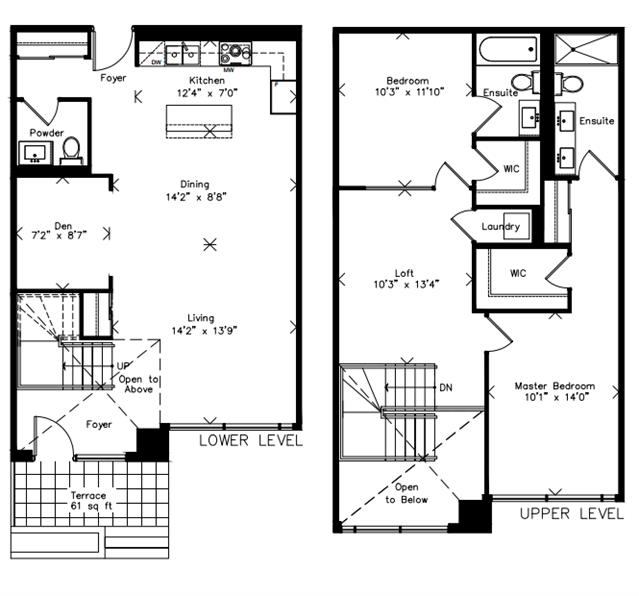
TH-06S
untitled - South Tower
North Toronto, Toronto
THA
The Poet
Leslieville, Toronto
TH-07S
TH-05S
TH-03S
TH-08S
Canon
Rodeo Drive
Don Mills, Toronto
8-storey condo proposed for Kingston Road gas station site
A small gas station and auto repair shop in Scarborough’s Birch Cliff neighbourhood could be replaced by a mid-rise condominium development.