FEATURED
2G
Queen Church
Garden District, Toronto
2D
2C
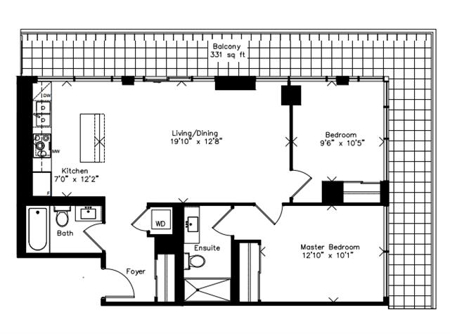
2B
2K
2B-D (BF)
Crest at Crosstown
Flemingdon Park, Toronto
2M (BF)
2P (BF)
8-storey condo proposed for Kingston Road gas station site
A small gas station and auto repair shop in Scarborough’s Birch Cliff neighbourhood could be replaced by a mid-rise condominium development.