FEATURED
1E+D
Queen Church
Garden District, Toronto
1F+D
1G+D
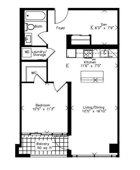
1-B
Yonge at Wellesley Station
Church and Wellesley, Toronto
1D1-C
1D2-A
1-A
1-D
8-storey condo proposed for Kingston Road gas station site
A small gas station and auto repair shop in Scarborough’s Birch Cliff neighbourhood could be replaced by a mid-rise condominium development.