FEATURED
1E+D
Queen Church
Garden District, Toronto
1G+D
1F+D
1-D
Yonge at Wellesley Station
Church and Wellesley, Toronto
1-B
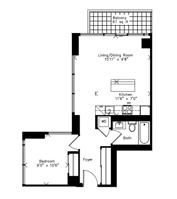
1D2-A
1D1-C
1-A
8-storey condo proposed for Kingston Road gas station site
A small gas station and auto repair shop in Scarborough’s Birch Cliff neighbourhood could be replaced by a mid-rise condominium development.