hero-image-0
Picasso Condos
Sold
Sold
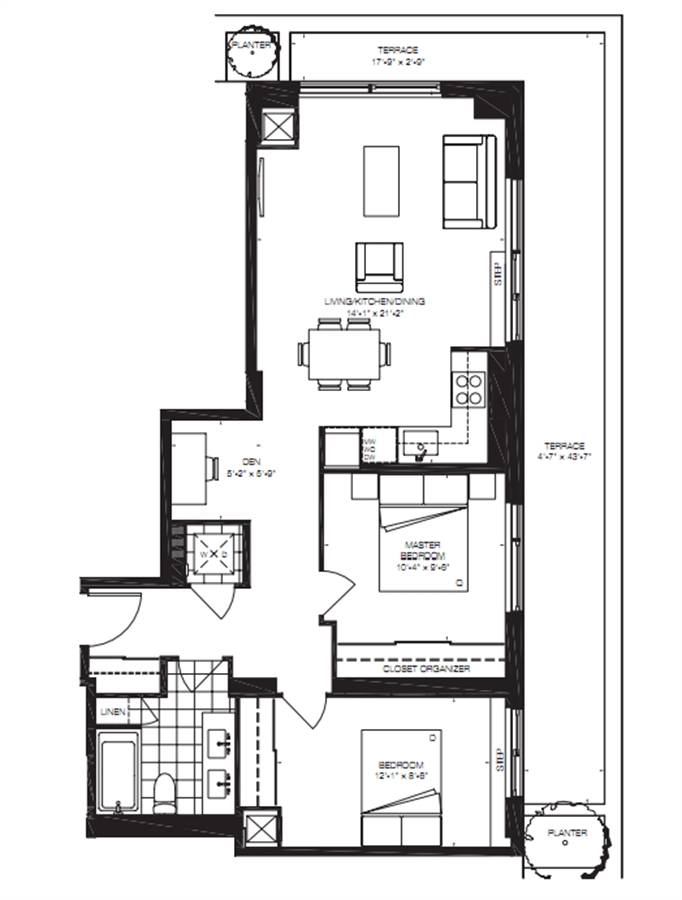
2
1
1
From 852
unit-banner-imageunit-banner-imageunit-banner-image
852 Plan details
852 Plan is now sold.
Check out available nearby plans below.