hero-image-0
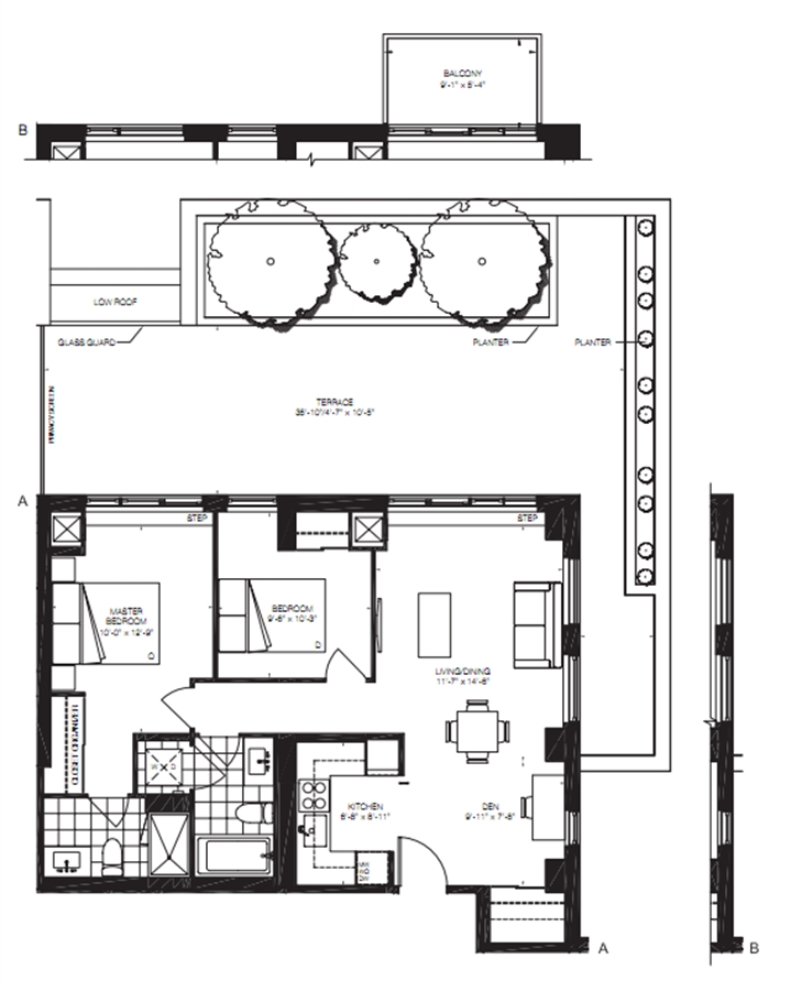
Picasso Condos
Sold
Sold
2
2
1
From 837
unit-banner-imageunit-banner-imageunit-banner-image
837 Plan details
837 Plan is now sold.
Check out available nearby plans below.