hero-image-0
Picasso Condos
Sold
Sold
1
1
1
From 678
unit-banner-imageunit-banner-imageunit-banner-image
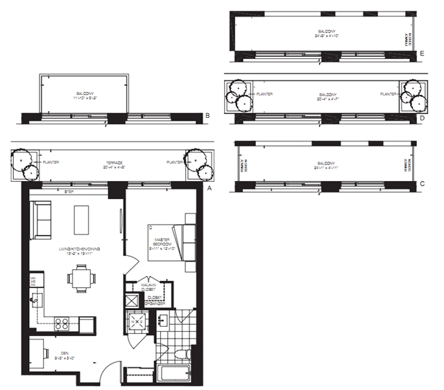
678 Plan details
678 Plan is now sold.
Check out available nearby plans below.