hero-image-0
Picasso Condos
Sold
Sold
1
1
1
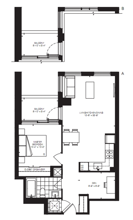
From 658
unit-banner-imageunit-banner-imageunit-banner-image
658 Plan details
658 Plan is now sold.
Check out available nearby plans below.