hero-image-0
Picasso Condos
Sold
Sold
1
1
1
From 653
unit-banner-imageunit-banner-imageunit-banner-image
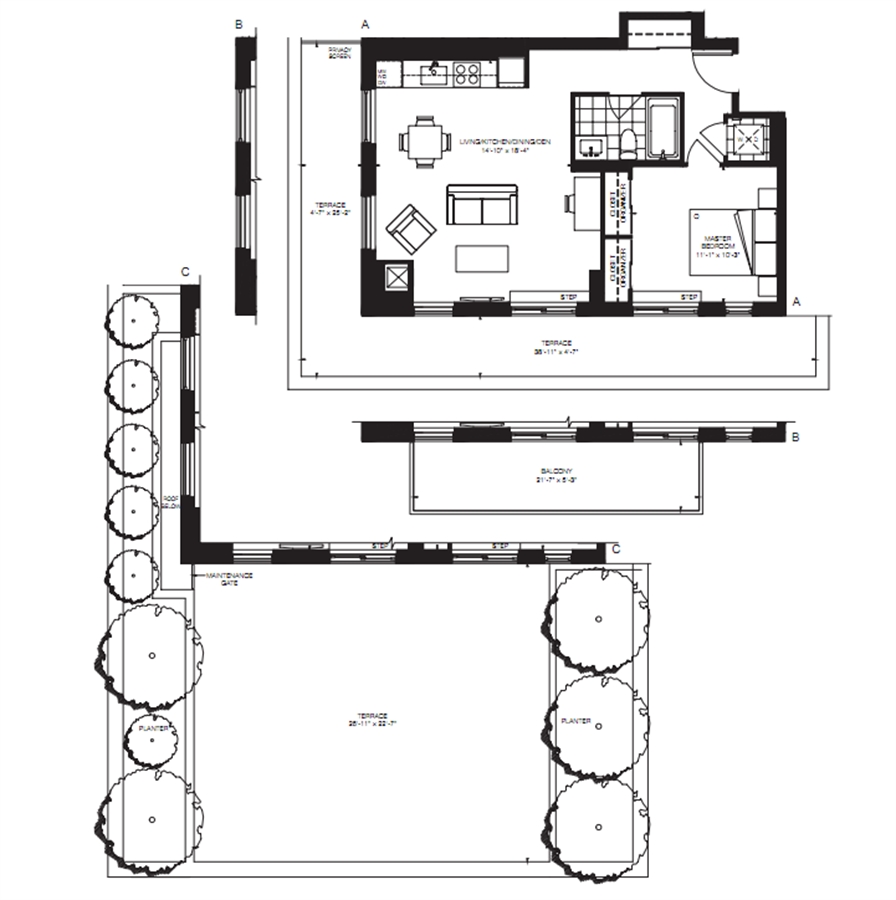
653 Plan details
653 Plan is now sold.
Check out available nearby plans below.