hero-image-0
Picasso Condos
Sold
Sold
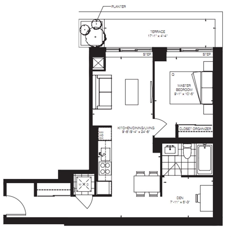
1
1
1
From 651
unit-banner-imageunit-banner-imageunit-banner-image
651 Plan details
651 Plan is now sold.
Check out available nearby plans below.