hero-image-0
Picasso Condos
Sold
Sold
1
1
1
From 639
unit-banner-imageunit-banner-imageunit-banner-image
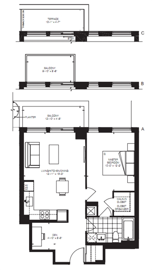
639 (2) Plan details
639 (2) Plan is now sold.
Check out available nearby plans below.