hero-image-0
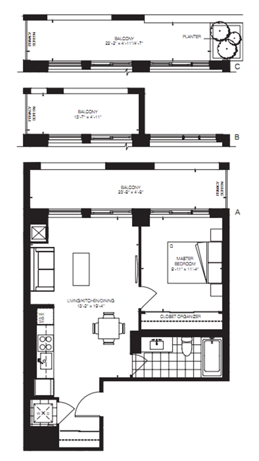
Picasso Condos
Sold
Sold
1
1
From 585
unit-banner-imageunit-banner-imageunit-banner-image
585 (2) Plan details
585 (2) Plan is now sold.
Check out available nearby plans below.