hero-image-0
Picasso Condos
Sold
Sold
1
1
From 561
unit-banner-imageunit-banner-imageunit-banner-image
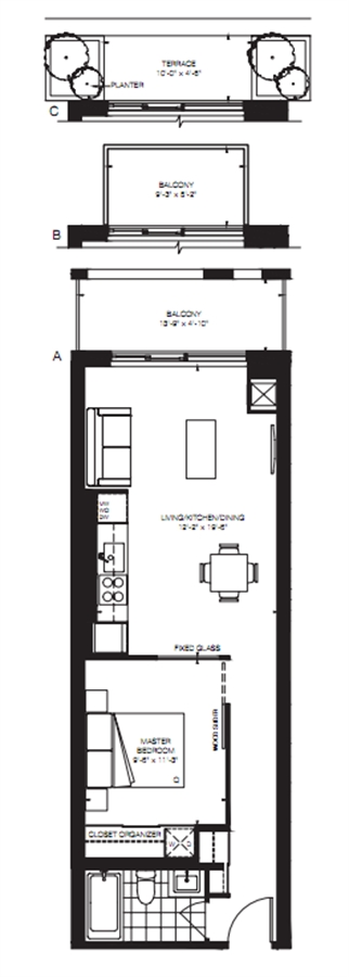
561 Plan details
561 Plan is now sold.
Check out available nearby plans below.