hero-image-0
Picasso Condos
Sold
Sold
1
1
From 506
unit-banner-imageunit-banner-imageunit-banner-image
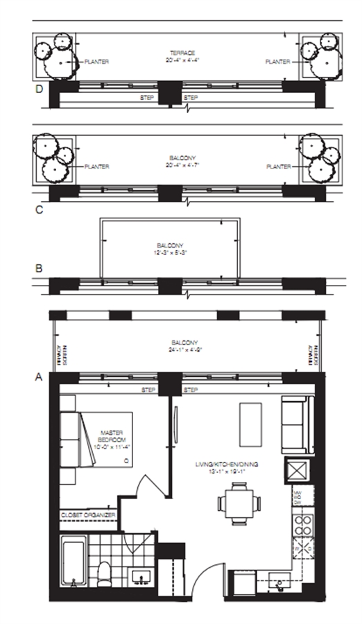
506 (2) Plan details
506 (2) Plan is now sold.
Check out available nearby plans below.