hero-image-0
Picasso Condos
Sold
Sold
1
1
From 475
unit-banner-imageunit-banner-imageunit-banner-image
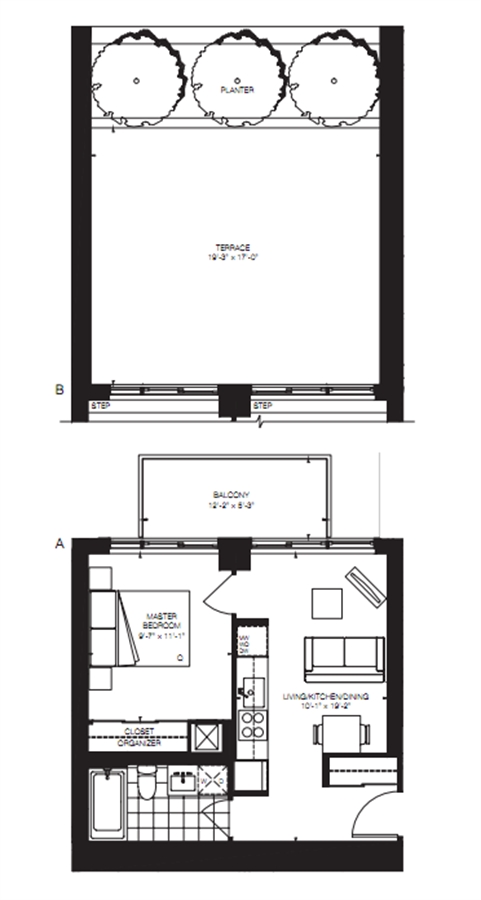
475 Plan details
475 Plan is now sold.
Check out available nearby plans below.