hero-image-0
Picasso Condos
Sold
Sold
1
From 456
unit-banner-imageunit-banner-imageunit-banner-image
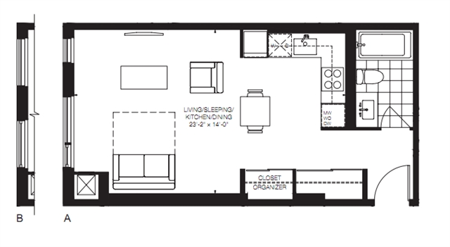
456 Plan details
456 Plan is now sold.
Check out available nearby plans below.