hero-image-0
Picasso Condos
Sold
Sold
1
From 425
unit-banner-imageunit-banner-imageunit-banner-image
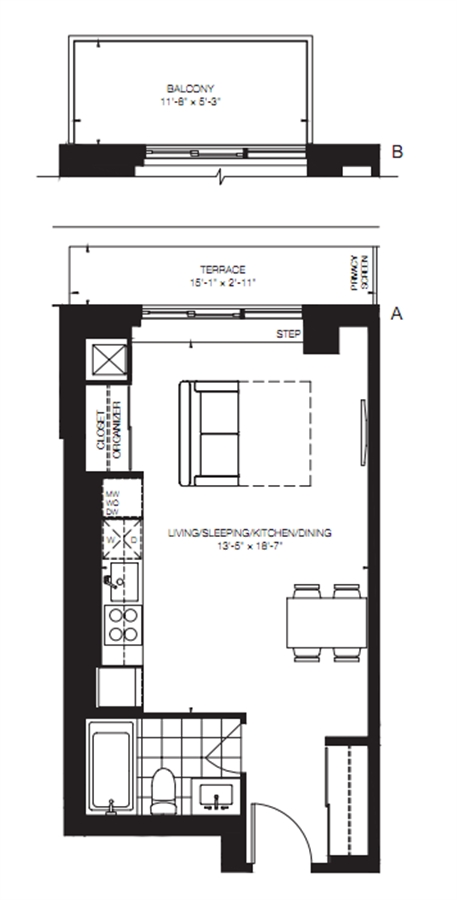
425 Plan details
425 Plan is now sold.
Check out available nearby plans below.