hero-image-0
Picasso Condos
Sold
Sold
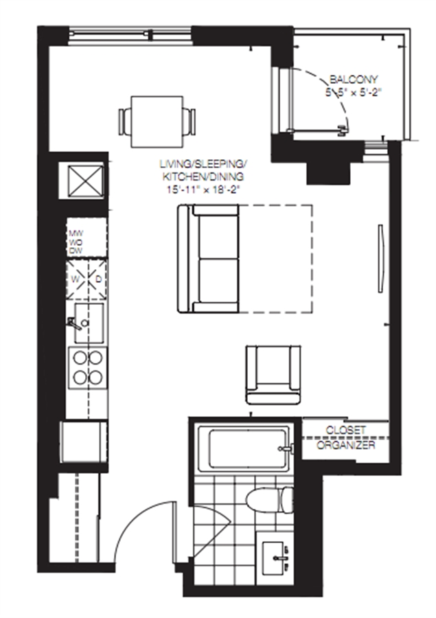
1
From 418
unit-banner-imageunit-banner-imageunit-banner-image
418 Plan details
418 Plan is now sold.
Check out available nearby plans below.