hero-image-0
Picasso Condos
Sold
Sold
1
From 417
unit-banner-imageunit-banner-imageunit-banner-image
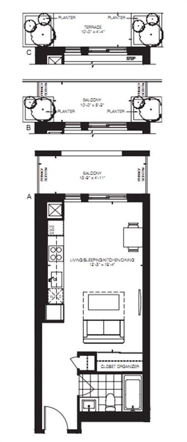
417 Plan details
417 Plan is now sold.
Check out available nearby plans below.