hero-image-0
Picasso Condos
Sold
Sold
1
From 398
unit-banner-imageunit-banner-imageunit-banner-image
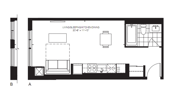
398 Plan details
398 Plan is now sold.
Check out available nearby plans below.